新世界旗下北角皇都首轮销售报捷后,发展商乘势今日进行次轮销售,涉及88伙,项目昨日截票,共录得约8,450票,按次轮销售88伙数计,超额认购约95倍,创2025年市区新盘票皇纪录。推售前夕,昨日以招标方式售出3房大宅,成交价3189.6万,呎价3.6万。
新世界发展营业及市务(特别项目)部总监何家欣表示,项目收票理想,截至昨日中午已累收逾8,000票。该盘昨日下午4时截票,发展商公布共录得约8,450票,超额认购约95倍。
仅余5伙维港珍藏大宅待沽
项目次轮推售前夕再添成交,昨日以招标方式售出33楼A2室荣耀·邸,面积886方呎,3房连套房间隔,以3189.6万成交,呎价约36,000元,项目全数荣耀·邸单位已告沽清。招标以来,成功售出21伙,项目所有4房大宅已全部沽清,平均售价约4,000万,现时仅余5伙维港珍藏大宅待沽。
今日进行次轮销售的88伙,涵盖29伙1房户及59伙2房户,面积介乎343至621方呎,以最高折扣22%计算,折实平均呎价19,866元。价单最平单位为7楼B7室,面积362方呎,为1房间隔,折实入场价648.7万,呎价17,920元。
▲新世界何家欣(中)表示,项目入票踊跃,以首轮向隅客复活票占大多数。
拣楼程序今日下午2时进行,分4组拣楼,率先进行X组为维港珍藏大宅买家提名之合资格人士进行拣楼,每个提名可购1伙。随后进行公开发售S组大手购货组别拣楼程序,买家最少购3伙,上限为9伙。然后进行的A组,买家最少购1至3伙,上限为3伙;最后进行的B组,买家最少购1伙,上限为3伙。
项目伙拍美联推出置业优惠,美联住宅行政总裁布少明表示,经该行购入单位可享获旅游礼券优惠,名额3个,项目首轮销售即日沽清,市场仍有大批向隅客,备受追捧。
▲皇都次轮推售价单88伙,包括29伙1房户、59伙2房户,面积介乎343至621方呎。
皇都18楼B3室示位:
项目开放2房连储物室示范单位予传媒参观,单位参照18楼B3室打造,面积509方呎,大厅空间四正实用,采开放式厨房设计,整体储存空间充足。
美联区域营业董事范浩铭称,由于皇都的地理位置优越,加上项目定价吸引,而且同区的租务需求殷切,故首轮开售,该行不乏用家及长线投资客入市,该行客户中占约6成为用家,约4成为长线投资客。由于项目属“世界盘”,除6成客源来自港岛区,亦有不少九龙及新界区客追捧入市。
皇都33楼B2室连装修示位:
▲连装修示范单位以33楼B2室为蓝本搭建,面积1246方呎。
皇都基本资料
发展项目名称 | 皇都 |
地址 | 北角英皇道283号 |
座数 | 1座 |
单位数目 | 388伙 |
户型 | 1房至4房 |
实用面积 | 306至1,522平方呎 |
预计关键日期 | 2026年12月31日 |
发展商 | 新世界 |
示范单位地址 | 鰂鱼涌英皇道728号K11 ATELIER King's Road 6楼 |
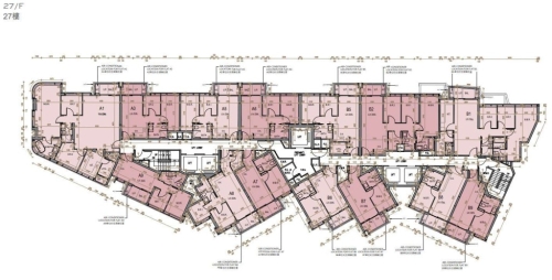
皇都布局及户型平面图
▲“维港六大珍藏之作”位于Victoria Zone,提供24伙。
皇都户型分布
户型 | 实用面积 (平方呎) | 单位数目 |
1房 | 343至362 | 125 |
2房 | 416至621 | 228 |
3房 | 726至1,079 | 20 |
4房 | 1,246或1,522 | 7 |
特色户 | 306至1,522 | 8 |
单位总数 | 388 | |
项目基座设四层(地下至3楼)零售楼面;5楼为住客会所,面积13,097方呎;住宅由6楼至最高35楼;而办公室则由8楼起至最高26楼,设16层。至于最瞩目的皇都戏院部份,共有6层,邻近英皇道。
皇都周边配套、交通及景观
皇都邻近巴士站、港铁炮台山站及电车站。项目亦邻近多个大型公园及商场,包括维多利亚公园、东岸公园、铜锣湾崇光百货及希慎广场等。
以上内容归星岛新闻集团所有,未经许可不得擅自转载引用。









